
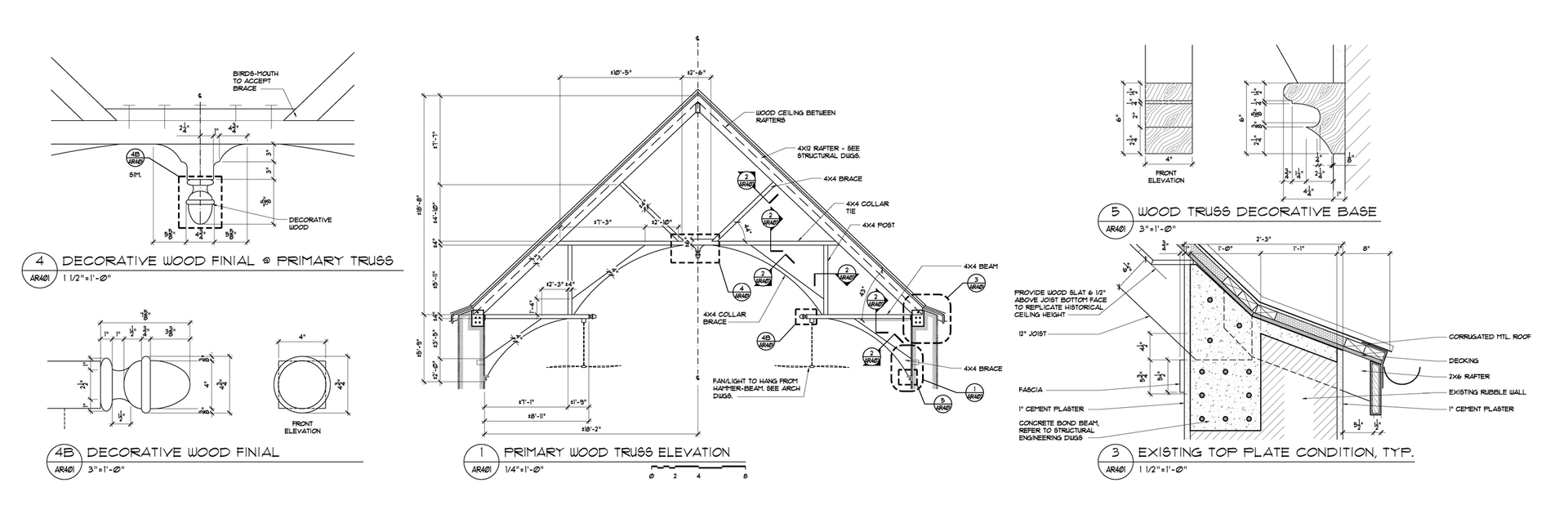
Hurricane Irma (2017) left the church in a state of severe disrepair. The roof was blown off and all interior decorative wood components were destroyed. The church is still operational as the congregation has made do using tents inside the sanctuary to continue gathering and worshipping. CTS is part of the team helping to restore, rebuild, and re-create the character-defining features which Hurricane Irma destroyed. A new roof will be provided with decorative wood trusses to match the original historic structure. Decorative wood interior elements will be re-created including the Choir Loft Canopy and Rail, Chancel Rail, Pulpit, and Vestry. Wood shutters and windows will be restored and the destroyed stained-glass window will be re-created and installed in a hurricane-rated frame with protective glazing.









